海唐整装 · 装修案例

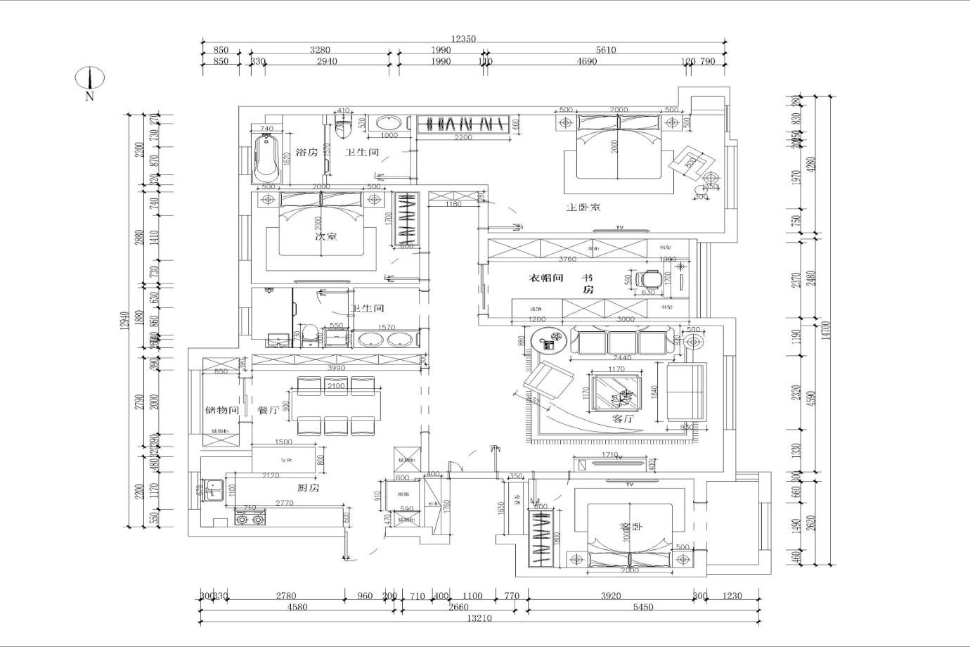
万锦紫园 -三室两厅-140m²-后现代风格

户型:三居    风格:现代    面积:140㎡

韩松  / 海唐整装主任设计师
预约设计师

设计理念

后现代风格特点 注重设计的人性与自由:在后现代风格的装修中,可以看到很多对于人的尊重与强调,很多设计都以注重人的感受为出发点。有些设计抛弃了规矩的设计,但是这种不规矩实际上为了满足人的舒适性。

案例展示

万锦紫园 -三室两厅-140m²-后现代风格 万锦紫园 -三室两厅-140m²-后现代风格 万锦紫园 -三室两厅-140m²-后现代风格 万锦紫园 -三室两厅-140m²-后现代风格 万锦紫园 -三室两厅-140m²-后现代风格 万锦紫园 -三室两厅-140m²-后现代风格 万锦紫园 -三室两厅-140m²-后现代风格 万锦紫园 -三室两厅-140m²-后现代风格 万锦紫园 -三室两厅-140m²-后现代风格

设计师的其他案例