现代轻奢风格注重高品质与设计感,将优雅时尚的质感结合着现代材质及装饰技巧巧妙地呈现在居室中,展示着精致高端的生活态度。
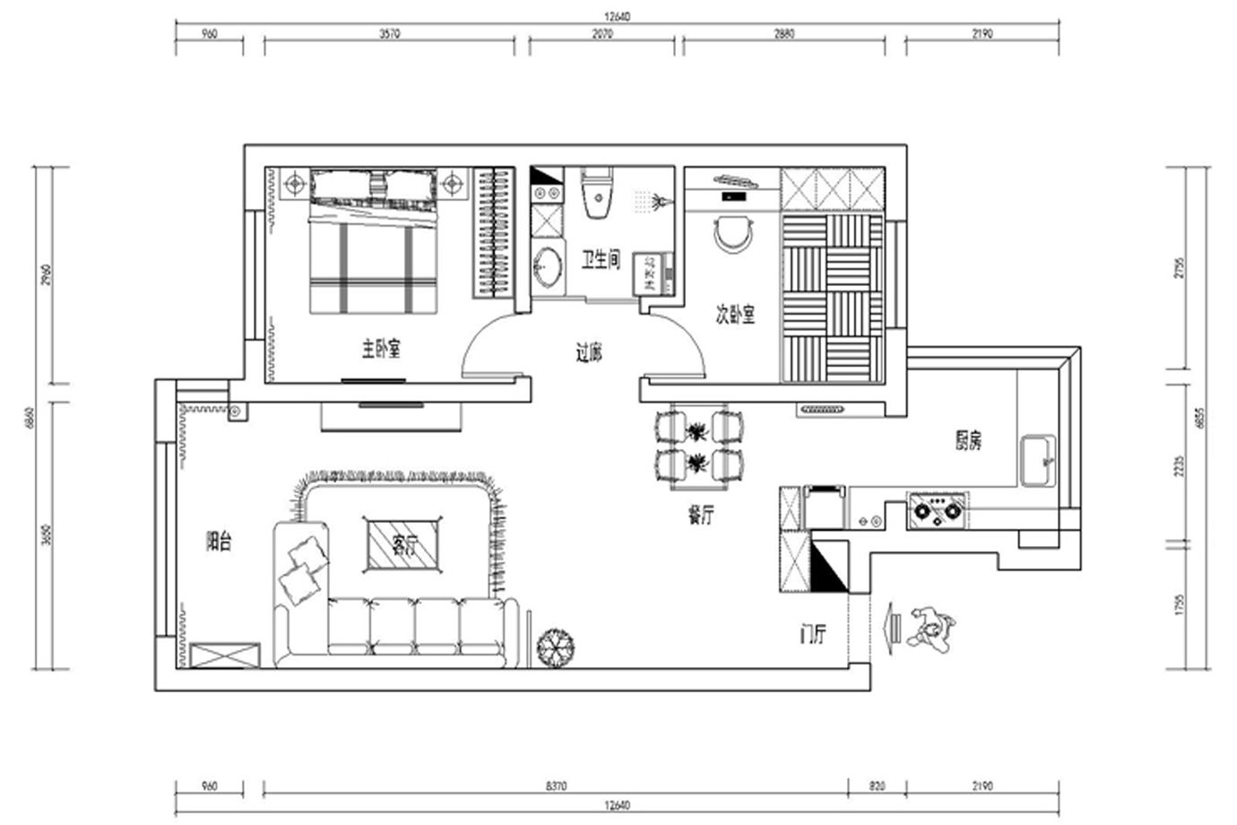
中铁丁香水岸-88平-现代
户型:二居 - 风格:现代 - 面积:88㎡
金石小镇-108平-现代风格
户型:三居 - 风格:现代 - 面积:108㎡
荣盛紫提东郡 127平 美式风格效果图
户型:三居 - 风格:简美 - 面积:127㎡
中铁丁香水岸-两室两厅-90平米-现代轻奢风格
户型:二居 - 风格:轻奢 - 面积:90㎡
保利大都会-三室一卫-110平米-美式风格
户型:三居 - 风格:美式 - 面积:110㎡
首页
案例
装修热线
团队
海唐